Premium New development

Villa de 3 chambres à vendre à Naxos

Naxos, Îles Égéennes, Grèce

€580 000  [£505 755]

Villa de 3 chambres à vendre à Naxos

Naxos, Îles Égéennes, Grèce

€580 000  [£505 755]

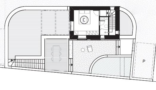
Détails du bien immobilier


  • Chambres: 3
  • Salles de bain: 3
  • Surface du terrain: 174 m2
  • Surface habitable: 144 m2

Description complète


Spacieux 3 chambres Villa dans un complexe de propriétés modernes et uniques dans la région de Galanado, Naxos offrant une vue sur la côte. Le projet comprend 4 maisons avec leur propre Jardin privé et piscine. La conception est durable, car elle garantit que toutes les maisons disposent d'une ventilation et d'un éclairage croisés appropriés, ce qui contribue à réduire les coûts d'exploitation. La fraîche brise du nord et les espaces bien ombragés sont l'endroit idéal pour se détendre et profiter du soleil en été. Produit par une équipe de conception innovante et créative, avec une expérience internationale dans les domaines de l'architecture et du design. Galanado est situé sur le côté ouest de Naxos. L'établissement est situé à proximité de la Chora de Naxos, à près de 5 km, ainsi que dans la vallée de Livadi, la principale zone agricole de l'île. Dans les environs de Galanado se trouvent des bâtiments architecturaux uniques, comme la tour de Belonias construite par les Vénitiens et l'église du Saint-Esprit, construite en 1780. Villa C caractéristiques: Vue sur la côte 2 étages Surface intérieure: 144 m2 Terrain: 174 m2 3 chambres 3 salles de bains WC invité Vérande Piscine privée Jardin Parking Prix de l'espace: 580.000€
Plus

*Certaines descriptions de biens immobiliers sur ce site sont traduites automatiquement par intelligence artificielle. Malgré tous nos efforts pour garantir leur exactitude, des erreurs ou des inexactitudes peuvent subsister. La version originale de l'annonce fait foi.

La carte peut ne pas indiquer l'emplacement exact

Cette annonce immobilière (réf: Galanado C) est fournie par Solid Estate et ne constitue pas nécessairement une description précise d’un bien particulier. Bien que aplaceinthesun.com (APITS Ltd.) demande à tous les annonceurs de fournir des informations correctes, il ne vérifie pas les informations fournies et ne peut être tenu responsable pour quelque erreur que ce soit. Aplaceinthesun.com recommande de solliciter un avis juridique indépendant avant tout achat de bien immobilier à l'étranger.