Premium New development

Villa de 3 chambres à vendre à Algorfa

Algorfa, Alicante, Région de Valence, Espagne

€535 000  [£470 082]

Villa de 3 chambres à vendre à Algorfa

Algorfa, Alicante, Région de Valence, Espagne

€535 000  [£470 082]

Détails du bien immobilier


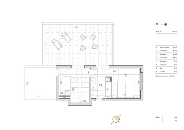
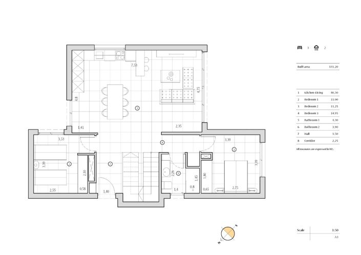
  • Chambres: 3
  • Salles de bain: 2

Description complète


New 3-Bedroom Modern Villas with Private Pool in Algorfa, Costa Blanca
Discover brand new modern villas in Algorfa, Costa Blanca, combining contemporary design, comfort, and high-quality finishes. Each villa offers bright, open-plan living spaces, private terraces, and a pool, perfect for full-time living, holidays, or investment.
Key Features
? 3 Bedrooms | 2 Bathrooms | 2 Floors? Private Swimming Pool & Terraces? Open-Plan Kitchen with Living Area? Large Windows with Direct Access to Terrace and Pool? Parking Space on the Plot? Modern New Build Villas in Exclusive Algorfa Location? Minutes from Guardamar and Torrevieja Beaches
Property Description
These newly built villas feature a contemporary design across two floors, providing spacious and functional layouts. The open-plan kitchen and living area are filled with natural light through large windows that open directly onto the terrace and pool, creating a seamless indoor-outdoor lifestyle.
The properties include three bedrooms, two bathrooms, and private outdoor spaces, including a pool and sun terraces, offering privacy and relaxation. With high-quality finishes and attention to detail, these villas are ideal for families, holidaymakers, or investors seeking a modern Costa Blanca home.
Location & LifestyleThese new build villas are ideally located in Algorfa, one of the Costa Blanca’s most sought-after areas, offering the perfect combination of tranquillity, convenience, and lifestyle amenities. The properties sit just minutes from the prestigious La Finca Golf & Spa Resort, a world-class destination featuring an 18-hole championship golf course, a luxurious five-star spa hotel, and state-of-the-art sports facilities, including professional football training pitches used by top teams. Residents can enjoy golf, wellness treatments, fine dining, and recreational activities right on their doorstep.
The charming Algorfa village provides local shops, cafés, and essential services, while the nearby Ciudad Quesadaoffers a wider range of international amenities, entertainment, and dining options, making daily life convenient and enjoyable.
For those who love the coast, the golden sands of Guardamar del Segura are just 20 minutes away, offering sun-soaked beaches, warm waters, and a vibrant selection of beachfront restaurants and leisure activities. Alicante Airport is 40 minutes away and Murcia Airport is 55 minutes, making these villas easily accessible for international buyers.
This location perfectly blends luxury living, outdoor lifestyle, and investment potential, ideal for full-time residents, holiday homes, or rental income.Additional Details
New build villas with modern architecturePrivate parking on the plotLow-maintenance garden and outdoor areasHigh-quality construction and materials
Next steps
Book your private viewing with one of Lisa Frain's new-build property experts today and secure one of these stunning new build villas in Algorfa. Modern design, private pools, and a prime location near the Costa Blanca beaches make these properties highly sought-after.
Plus

La carte peut ne pas indiquer l'emplacement exact

Cette annonce immobilière (réf: LFX-14152) est fournie par Lisa Frain Estate Agent et ne constitue pas nécessairement une description précise d’un bien particulier. Bien que aplaceinthesun.com (APITS Ltd.) demande à tous les annonceurs de fournir des informations correctes, il ne vérifie pas les informations fournies et ne peut être tenu responsable pour quelque erreur que ce soit. Aplaceinthesun.com recommande de solliciter un avis juridique indépendant avant tout achat de bien immobilier à l'étranger.