Premium New development

Terrain à vendre à São Brás de Alportel

São Brás de Alportel, Faro City, Algarve, Portugal

€160 000  [£139 130]

Terrain à vendre à São Brás de Alportel

São Brás de Alportel, Faro City, Algarve, Portugal

€160 000  [£139 130]

Détails du bien immobilier


  • Chambres: 0
  • Salles de bain: 0
  • Surface du terrain: 397,25 m2
  • Surface habitable: 203,28 m2

Caractéristiques


  • Double Verre
  • Certificat de performance énergétique – A

Description complète


Terrain de 397,25 m2 avec projet approuvé pour la construction d'une maison T4 avec sous-sol, insérée dans une copropriété privée de 11 maisons, avec piscine commune.
Le permis de construire a été délivré le 9 décembre 2022, valable 18 mois (prolongable).
Le projet sera une maison de 2 étages avec 4 chambres, un sous-sol de 242,48 m2, un patio avant et arrière.
Avec un emplacement privilégié pour ceux qui aiment vivre dans un endroit calme, mais à seulement 3 minutes du centre de São Brás et de tous les services et écoles.
Venez découvrir ce projet et construisez la maison de vos rêves !
Superficie totale du terrain : 397,25m²
Surface au sol du bâtiment : 113,25 m²
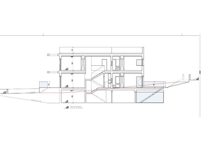
Surface couverte (sous-sol + étage 0 + étage 1) : 452,85m2
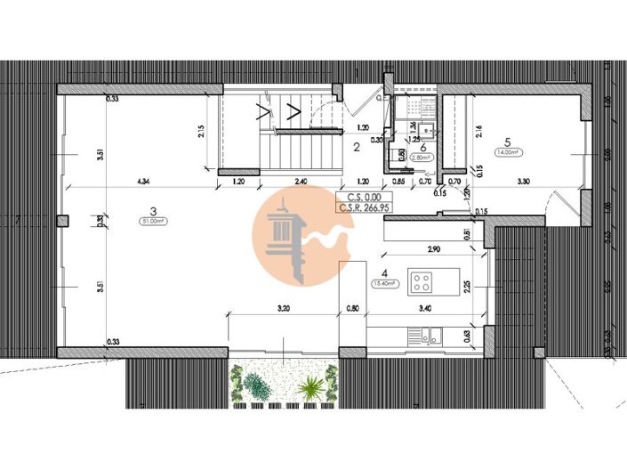
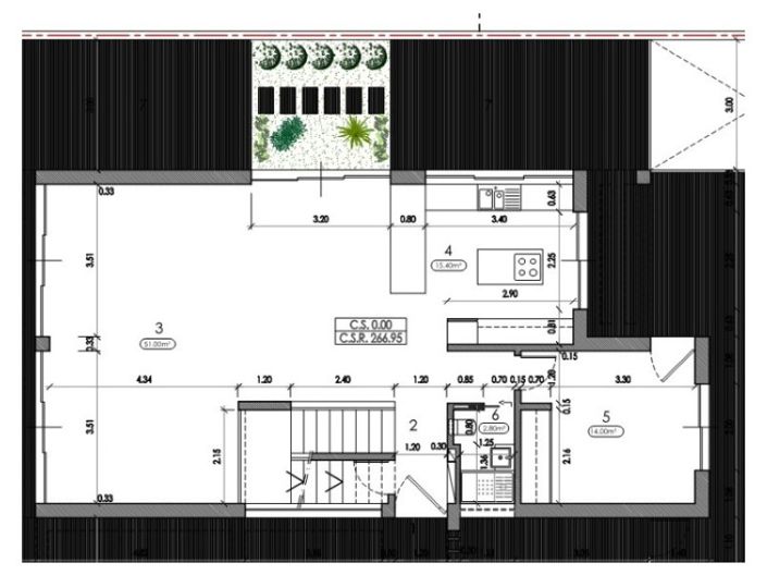
Rez-de-chaussée (113,25m2)
- Grand salon de 51m2
- Cuisine de 15,40m2
- 1 salle de bain complète
- 1 Chambre avec 14m2
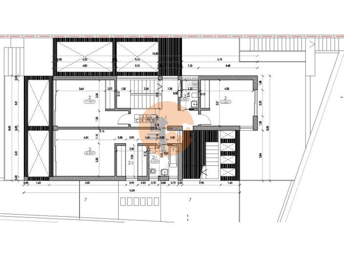
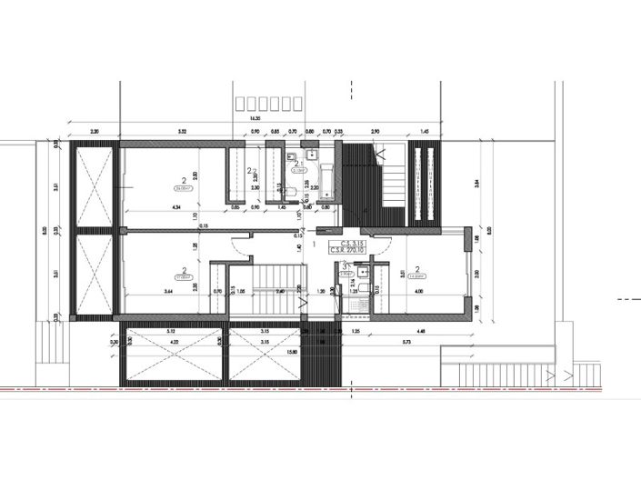
1er étage (102,25m2)
- 1 Chambre avec salle de bain privée et placard (26m2)
- 1 chambre avec placard (17m2)
- 1 Chambre avec placard (14m2)
- 1 salle de bain complète
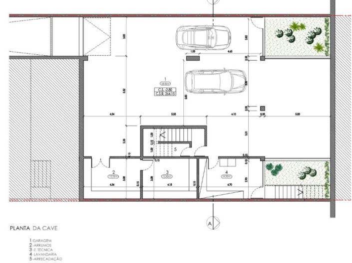
Sous-sol (237,35m2)
- Grand sous-sol avec possibilité de stationnement pour plusieurs voitures, non seulement avec accès à l'intérieur de la maison, ainsi qu'un accès direct au patio arrière.
- Stockage
- Zone Technique
- Lessive
- Collection
- Espace jardin
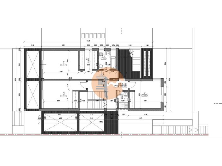
Attique (102,25m2)
Excellente opportunité d'investissement !!
Performance Énergétique: A
#ref: CS-LOTM-91888
Plus

La carte peut ne pas indiquer l'emplacement exact

Cette annonce immobilière (réf: CS-LOTM-91888) est fournie par Around the Sun Lda et ne constitue pas nécessairement une description précise d’un bien particulier. Bien que aplaceinthesun.com (APITS Ltd.) demande à tous les annonceurs de fournir des informations correctes, il ne vérifie pas les informations fournies et ne peut être tenu responsable pour quelque erreur que ce soit. Aplaceinthesun.com recommande de solliciter un avis juridique indépendant avant tout achat de bien immobilier à l'étranger.