Premium New development

Maison de ville de 2 chambres à vendre à Kalkara

Kalkara, Malta, Malte

€750 000  [$883 003]

Maison de ville de 2 chambres à vendre à Kalkara

Kalkara, Malta, Malte

€750 000  [$883 003]

Détails du bien immobilier


  • Chambres: 2
  • Salles de bain: 0

Description complète


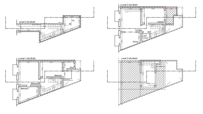
A most charming and bright TOWNHOUSE converted to an exquisite standard, offering typical features such as beautiful patterned tiles throughout, wooden & steal beams, wooden apertures, stone main stairs with period iron banister as main feature of the house and the benefit of an outstanding roof terrace with impressive harbour views. Accommodation opens into a traditional hall way full of natural light coming from the sunny back yard, the elegant stone staircase leads up to two spacious bedrooms, both with en-suite, washroom; further up to a wide living and dining area flooded with natural light, a kitchen/breakfast with a back terrace, a spare toilet, a study at roof level with the roof terrace. Excellent property.

Plus

La carte peut ne pas indiquer l'emplacement exact