Maison de campagne de 2 chambres à vendre à Bisenti
Bisenti, Teramo, Abruzzes, Italie
Description complète
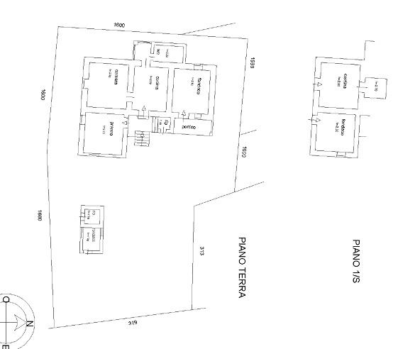
TWO BEDROOM DETACHED HOUSE made of stone and bricks of about 140 sqm and built on three levels ; LAND of about 6700 sqm
The property is located on the edge of the town of Bisenti , about 1 kilometer from the center of this historical characteristic town.
On the GROUND FLOOR - two large rooms with separate entrance previously used as stable and wine cellar.
A wide and easy stone staircase leads to the
FIRST FLOOR - external hallway, two entrance doors :
- on the left hand side there is only one large room with three windows
- The next door leads to a kitchen dining room with fireplace, one bedroom, hallway, bathroom.
Accessible by external staircase there is a
SECOND FLOOR/ATTIC – large room and a mezzanine floor divided in two rooms .
On the first floor it would be possible to open a door between the two apartments and join them together, it would become one large two bedroom apartment.
The second floor has a characteristic brick floor and beautiful roof with exposed beams, it shall be an independent apartment .
The property has an outbuilding and lovely land with a large variety of fruit trees and an olive grove .
The services are already installed and the property does not meet a great deal of work to make it habitable.
The house is structurally restored, there is a new insulated roof with exposed chestnut beams and brick tiles, on the ground floor the property keeps the original vaulting ceilings.
The property does not meet a great deal of work to make it a lovely home.
The main road is about 100 meters, about 40 minutes from the beach and Pescara airport.
Plus