Premium New development

Maison de 1 chambre à vendre à Tavira

Tavira, Algarve, Portugal

€195 000  [£171 383]

Maison de 1 chambre à vendre à Tavira

Tavira, Algarve, Portugal

€195 000  [£171 383]

Détails du bien immobilier


  • Chambres: 1
  • Salles de bain: 2
  • Surface du terrain: 61,74 m2
  • Surface habitable: 90 m2

Caractéristiques


  • Double Verre
  • Certificat de performance énergétique – Exempt

Description complète


Terrain avec projet approuvé pour une maison 1 chambre à Santa Luzia, à seulement 50 mètres du front de mer.
Ce terrain de 61,74 m2 a une surface de construction d'environ 90 m2.
La licence est payable.
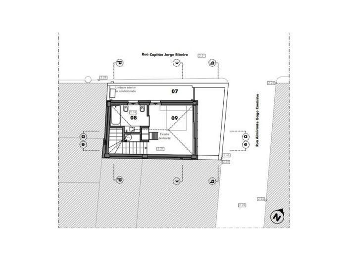
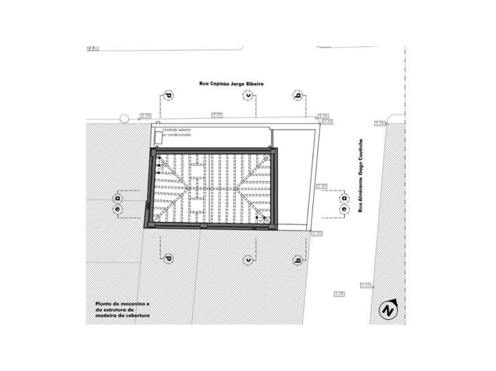
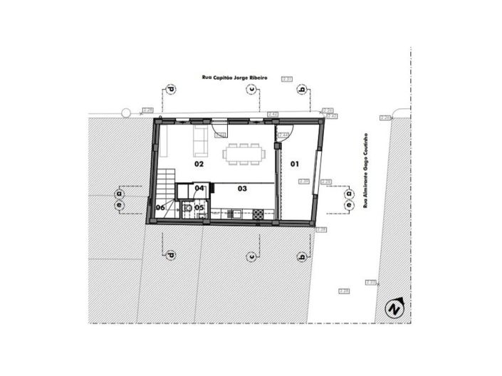
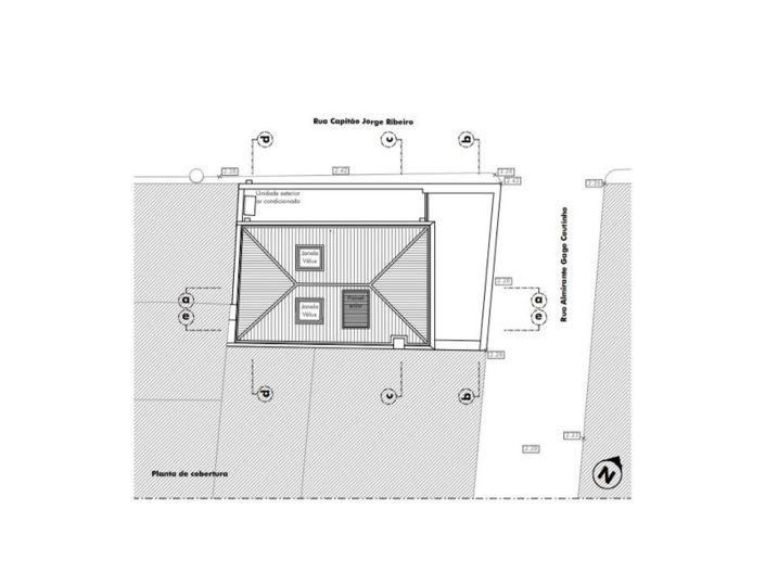
Le projet prévoit la construction d'une maison T1 sur deux étages.
Au rez-de-chaussée il y a un salon et une cuisine à aire ouverte, une salle de bain de service et un patio.
Au premier étage une chambre en suite.
Situé dans le village de pêcheurs de Santa Luzia où vous pouvez accéder à différentes options de commerce et de services locaux.
L'accès en bateau à la plage de Santa Luzia se trouve à seulement 5 minutes à pied.
La ville de Tavira est à 5 minutes en voiture, et il y a aussi la possibilité d'emprunter la piste cyclable.
Contactez-nous pour plus d'informations sur votre future maison de vacances !
-----------------
À propos du village de Santa Luzia
Pêcheuse en pleine nature, cette paroisse prospère également grâce au tourisme, avec des hébergements, des restaurants et des plages de qualité. Désignée « capitale du poulpe », Santa Luzia offre à tous ses visiteurs de véritables moments d'harmonie et de bien-être.
Profitez de la vie de ce village et des arts de la pêche qui cohabitent dans un environnement en harmonie avec le tourisme et l'hospitalité des habitants de Santaluz.
Casas do Sotavento est une entreprise familiale, reconnue dans le pays et à l'étranger, par les clients, les salariés, les investisseurs, pour la qualité de nos actions et de nos projets. Notre mission est de fournir une expérience simple et fluide. Notre souci est de traiter chacun comme nous aimerions être traités.
Performance Énergétique: Exempt
#ref: CS-MOR-90747
Plus

La carte peut ne pas indiquer l'emplacement exact

Cette annonce immobilière (réf: CS-MOR-90747) est fournie par Around the Sun Lda et ne constitue pas nécessairement une description précise d’un bien particulier. Bien que aplaceinthesun.com (APITS Ltd.) demande à tous les annonceurs de fournir des informations correctes, il ne vérifie pas les informations fournies et ne peut être tenu responsable pour quelque erreur que ce soit. Aplaceinthesun.com recommande de solliciter un avis juridique indépendant avant tout achat de bien immobilier à l'étranger.