Premium New development

Commercial à vendre à Zakaki

Zakaki, Limassol, Chypre

€1 445 616  [£1 258 480]

Commercial à vendre à Zakaki

Zakaki, Limassol, Chypre

€1 445 616  [£1 258 480]

Détails du bien immobilier


  • Chambres: 0
  • Salles de bain: 2
  • Surface du terrain: 216 m2

Description complète


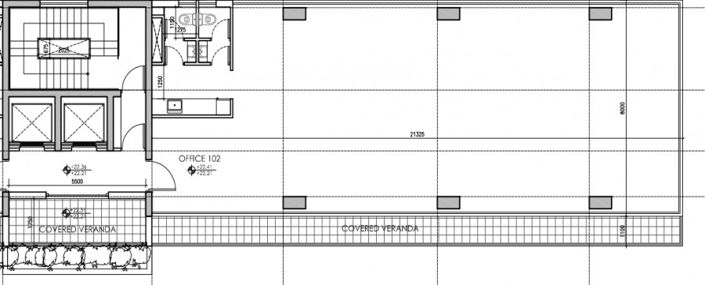
L'actif est un bâtiment à usage Commercial situé au cœur du nouveau quartier de Limassol, à Zakaki. La popularité de la zone est due à la proximité du plus grand port de Chypre, My Mall et à la construction du premier casino-resort intégré de Chypre: City of Dreams, qui ouvrira ses portes aux premiers visiteurs en 2020. Le bâtiment comprend des magasins exclusifs et des bureaux avec une vue imprenable sur la mer et la ville. Le bâtiment présente un style moderne et élégant et est conçu pour offrir une solution de planification confortable avec des finitions haut de gamme. Le bâtiment se compose de 4 niveaux. Le Rez-de-chaussée a une superficie couverte de 603,25 m2, composée des zones commerciales plus 725 m2. Dans le sous-sol. Le premier étage a une surface couverte de 495,49 m2. et comprend, la zone du hall, deux espaces de bureaux et 2 espaces de bureaux, la zone du hall et les verandages couverts. Le troisième étage a une surface couverte de 503,13 m2. Il comprend 2 bureaux, une véranda couverte et un hall. Le bâtiment propose également des espaces Parking, des entrepôts et des jardins sur le toit. Chaque bureau bénéficie de plafonds de 3 mètres de haut et de finitions de haut niveau
Plus

*Certaines descriptions de biens immobiliers sur ce site sont traduites automatiquement par intelligence artificielle. Malgré tous nos efforts pour garantir leur exactitude, des erreurs ou des inexactitudes peuvent subsister. La version originale de l'annonce fait foi.

La carte peut ne pas indiquer l'emplacement exact

Cette annonce immobilière (réf: 28004) est fournie par BlueSky Houses et ne constitue pas nécessairement une description précise d’un bien particulier. Bien que aplaceinthesun.com (APITS Ltd.) demande à tous les annonceurs de fournir des informations correctes, il ne vérifie pas les informations fournies et ne peut être tenu responsable pour quelque erreur que ce soit. Aplaceinthesun.com recommande de solliciter un avis juridique indépendant avant tout achat de bien immobilier à l'étranger.