Premium New development

Villa de 3 chambres à vendre à Vilamoura

Vilamoura, Algarve, Portugal

€995 000  [£879 131]

Villa de 3 chambres à vendre à Vilamoura

Vilamoura, Algarve, Portugal

€995 000  [£879 131]

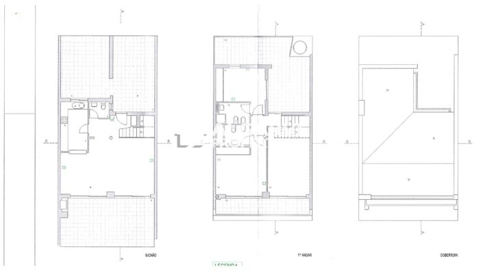
Détails du bien immobilier


  • Chambres: 3
  • Salles de bain: 3
  • Surface habitable: 177 m2

Description complète


Maison de ville de 2+1 chambres parfaitement située dans une communauté fermée avec piscine et jardin. À 2,5 km du port de plaisance et de la plage de Vilamoura.

Avec 177 m2 de surface de construction.

La propriété se compose d'un rez-de-chaussée avec un grand salon avec une cuisine américaine entièrement équipée avec un îlot, un débarras et une salle de bain. Il dispose également d'une buanderie et d'un débarras.

Alors qu'au premier étage, nous trouvons 3 chambres et deux salles de bains. Nous avons également 2 grandes terrasses avec une grande exposition au soleil.

Finitions de haute qualité. Climatisation. Stores électriques. Panneaux solaires. Verres doubles. Pré installation pour le chauffage central.

Parking privé couvert pour une voiture.

Orientation est et ouest avec vue panoramique.

Bon potentiel d'investissement!

Location facile.

AlgarveProperty.com - AMI: 2196 - T.: 00351 289310310
Plus

La carte peut ne pas indiquer l'emplacement exact

Cette annonce immobilière (réf: MB227396P) est fournie par AlgarveProperty.com et ne constitue pas nécessairement une description précise d’un bien particulier. Bien que aplaceinthesun.com (APITS Ltd.) demande à tous les annonceurs de fournir des informations correctes, il ne vérifie pas les informations fournies et ne peut être tenu responsable pour quelque erreur que ce soit. Aplaceinthesun.com recommande de solliciter un avis juridique indépendant avant tout achat de bien immobilier à l'étranger.