Premium New development

Villa de 4 chambres à vendre à Kissonerga

Kissonerga, Paphos, Chypre

€620 000  [£544 911]

Villa de 4 chambres à vendre à Kissonerga

Kissonerga, Paphos, Chypre

€620 000  [£544 911]

Détails du bien immobilier


  • Chambres: 4
  • Salles de bain: 4
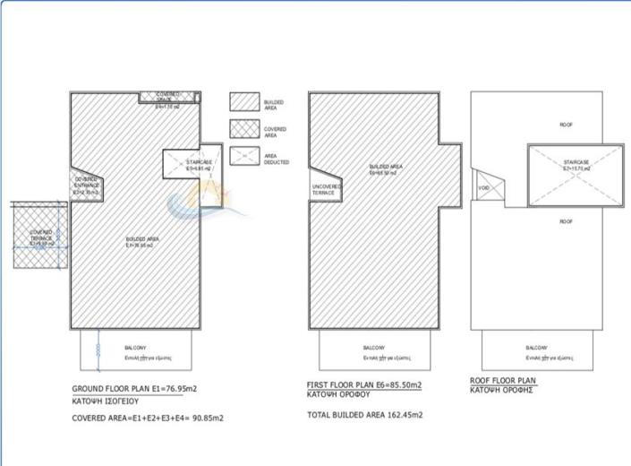
  • Surface du terrain: 303 m2
  • Surface habitable: 162 m2

Description complète


Under construction project.

Delivery - December 2023

Price + VAT

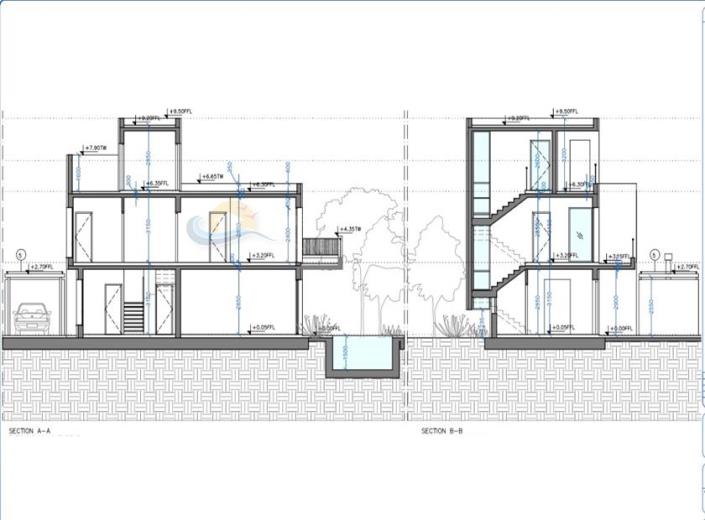
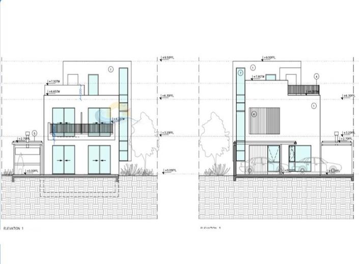
Plot:
4 bedrooms
4 bathrooms
Living area: 162 m2
Covered Parking - 23 m2
Uncovered Terrace - 79 m2
Covered veranda - 13 m2
Private pool - 7*3 m2
Total Covered area - 175 m2

Paphos, located on the southwestern coast of Cyprus, is a captivating destination that offers numerous compelling reasons to consider buying property. With its rich history, stunning natural beauty, favourable climate, and flourishing real estate market, Paphos has become an increasingly popular choice for investors and homebuyers alike. Here are some key reasons why buying in Paphos is a great decision:

1. Mediterranean Paradise: Paphos boasts a breathtaking coastline with pristine beaches, crystal-clear waters, and dramatic cliffs. The region offers an idyllic Mediterranean lifestyle with plenty of opportunities for swimming, snorkelling, sailing, and enjoying leisurely beach walks. The stunning sunsets and year-round mild climate further enhance the allure of living in this coastal paradise.

2. Historical and Cultural Heritage: Paphos is brimming with history and is recognized as a UNESCO World Heritage Site. It is home to remarkable archaeological sites, including the ancient Tombs of the Kings, the intricate mosaics of the Paphos Archaeological Park, and the famous Petra tou Romiou, said to be the birthplace of Aphrodite, the Greek goddess of love and beauty. Living in Paphos means immersing oneself in a rich tapestry of culture and heritage.

3. Investment Potential: Paphos has experienced a surge in real estate development in recent years, making it an excellent investment opportunity. The city offers a wide range of properties, from luxurious beachfront villas to modern apartments and charming townhouses. The thriving tourism industry, significant infrastructure investments, and the growing number of visitors contribute to the strong rental demand, ensuring a steady income stream for property owners.

4. High Quality of Life: Paphos offers an exceptional quality of life with its excellent healthcare facilities, international schools, and a wide range of leisure and recreational activities. The city boasts a vibrant culinary scene, with numerous restaurants serving both traditional Cypriot cuisine and international delicacies. The low crime rate, welcoming local community, and relaxed pace of life add to the city's appeal for families, retirees, and professionals.

5. Connectivity and Accessibility: Paphos benefits from excellent connectivity, with an international airport that offers regular flights to major European cities. The city is well-connected via road networks, making it easy to explore the rest of Cyprus and visit nearby attractions. The proposed extension of the Paphos-Limassol motorway further enhances accessibility and facilitates commuting between the two cities.

6. Natural Beauty and Outdoor Activities: Beyond its stunning beaches, Paphos is surrounded by captivating landscapes. The region is home to the striking Akamas Peninsula, a nature reserve teeming with rare flora and fauna. Outdoor enthusiasts can enjoy hiking, cycling, and exploring the Akamas trails. Additionally, the Troodos Mountains are within reach, offering opportunities for skiing, mountain biking, and nature walks.

In summary, Paphos combines natural beauty, rich history, investment potential, and a high quality of life, making it an attractive destination for property buyers. Whether you are looking for a holiday home, a permanent residence, or an investment property, Paphos offers a wealth of opportunities and a truly enchanting lifestyle in one of the most picturesque corners of the Mediterranean.

Plus

La carte peut ne pas indiquer l'emplacement exact

Cette annonce immobilière (réf: AGEV9) est fournie par Sunshine Luxury Villas et ne constitue pas nécessairement une description précise d’un bien particulier. Bien que aplaceinthesun.com (APITS Ltd.) demande à tous les annonceurs de fournir des informations correctes, il ne vérifie pas les informations fournies et ne peut être tenu responsable pour quelque erreur que ce soit. Aplaceinthesun.com recommande de solliciter un avis juridique indépendant avant tout achat de bien immobilier à l'étranger.