Premium New development
Retour aux Résultats

Terrain à vendre à San Miguel

San Miguel, Tenerife, Iles Canaries, Espagne

€70 000  [£60 938]

Terrain à vendre à San Miguel

San Miguel, Tenerife, Iles Canaries, Espagne

€70 000  [£60 938]

Détails du bien immobilier


  • Chambres: 0
  • Salles de bain: 0

Description complète


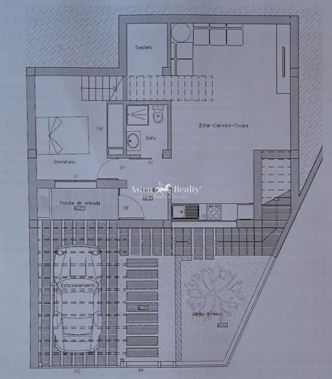
À vendre une maison urbaine de 160 m2 Terrain avec le projet de construire une maison unifamiliale dans un environnement rustique avec une vue impressionnante sur l'océan et les montagnes. Le Terrain est situé dans la rue La Sabina dans la municipalité de San Miguel de Abona. Il s'agit d'une partie urbaine sur Terrain rustique, qui permet la construction d'un Maison ou d'un autre type de construction de 2 étages et 15 m de profondeur. Il est vendu avec le projet approuvé d'un Individuelle Maison moderne. Vous devez demander le permis. Le Terrain est alimenté en électricité et en eau. D'un côté, il est adjoint à un Maison, sur la main Autre, il y a un autre bâtiment libre Terrain. La partie arrière est un Terrain rustique sans permis de construire, et la partie avant du Terrain fait face à une rue pavée avec un trafic très modéré, bien reliée aux routes principales. Le cadre rustique, les vues impressionnantes sur la mer et les montagnes et la connexion parfaite aux routes offrent la possibilité de construire une maison parfaite dans un emplacement idyllique.Asten Realty Reference: 8162.
Plus

*Certaines descriptions de biens immobiliers sur ce site sont traduites automatiquement par intelligence artificielle. Malgré tous nos efforts pour garantir leur exactitude, des erreurs ou des inexactitudes peuvent subsister. La version originale de l'annonce fait foi.

La carte peut ne pas indiquer l'emplacement exact

Cette annonce immobilière (réf: 942391) est fournie par ASTEN REALTY et ne constitue pas nécessairement une description précise d’un bien particulier. Bien que aplaceinthesun.com (APITS Ltd.) demande à tous les annonceurs de fournir des informations correctes, il ne vérifie pas les informations fournies et ne peut être tenu responsable pour quelque erreur que ce soit. Aplaceinthesun.com recommande de solliciter un avis juridique indépendant avant tout achat de bien immobilier à l'étranger.