Premium New development

Maison / Villa de 3 chambres à vendre à Peyia

Peyia, Paphos, Chypre

€550 000  [£481 569]

Maison / Villa de 3 chambres à vendre à Peyia

Peyia, Paphos, Chypre

€550 000  [£481 569]

Détails du bien immobilier


  • Chambres: 3
  • Salles de bain: 4
  • Surface du terrain: 600 m2
  • Surface habitable: 195 m2

Description complète


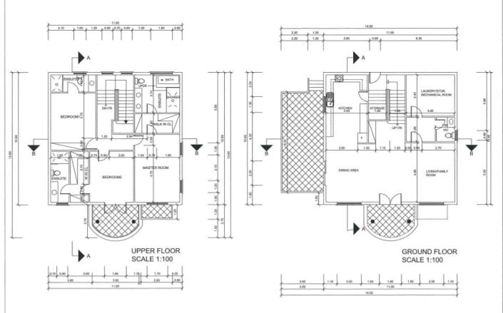
New and spacious three bedroom villa located in Peyia, Paphos.

This villa is part of a new development that is currently under construction and offers modern fittings and fixtures.

The house consists of two floors. On the ground floor you will find an open-plan kitchen with a breakfast bar, living area, dining area, and guest bathroom.
The first floor consists of a full bathroom, and 3 bedrooms (master bedroom with en-suite).

All rooms are air-conditioned.

Externally the house offers a covered veranda, open balcony with sea views, a private swimming pool and garden.

Title deed guaranteed.
Delivery - winter of 2024
Plus

La carte peut ne pas indiquer l'emplacement exact