Premium New development

Villa de 3 chambres à vendre à Almirida

Almirida, Chania, Crète, Grèce

€770 000  [£674 197]

Villa de 3 chambres à vendre à Almirida

Almirida, Chania, Crète, Grèce

€770 000  [£674 197]

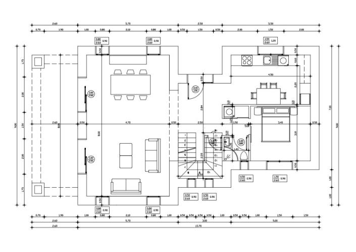
Détails du bien immobilier


  • Chambres: 3
  • Salles de bain: 3
  • Surface du terrain: 980 m2
  • Surface habitable: 175 m2

Description complète


A stylish stone villa with a pool in Almyrida.

Planned to be built on a plot of approx. 980 sq.m. at the sea resort of Almyrida, this brand-new project is a beautiful, spacious, two-level stone villa with a 41 sq.m. pool, offering both sea and mountain views.
The 175 sq.m. villa will sit on a stone-fenced plot not far from the beach and the center of the picturesque village of Almyrida. It will have a total of three bedrooms and three bathrooms and two levels. The upper level, reserved for two bedrooms with its own bathroom, will have two large balconies and be capped by a beautiful tiled-pitched roof.
The main volume of the ground floor, the part overlooking the pool and the garden is reserved for the dining and living room in an open plan and large sliding double-glazed doors in front will give immediate access to the pool area and the covered front terrace plus lots of natural light to the interior.
Further back an open plan kitchen with access to the backyard and terrace is flanked by an interior staircase in the middle of the ground floor that separated the living area from the ground floor bedroom and bathroom.
The whole structure will have natural insulation due to the thickness of the stone (about 60 cm) and full heat and hydro insulation from double-glazed, heat-insulating aluminum windows with fitted insect nets and electrically-operated rolling shutters.
The villa will also be equipped with an autonomous diesel heating system, electric water heater, solar panels for hot water and a separate water tank for greater autonomy. It will also be protected with an alarm system and a video surveillance system.
Outside the spacious terrace surrounding the pool will have a pergola-shaded BBQ area with a sink and running water. The whole property offers plenty of space for sunbeds and relaxation both shaded and under the sun. All rooms will have aircon units. Inside and outside Italian non-slip floor tiles & marble of top quality will be safe and durable.

Almyrida is a coastal settlement at the Gulf of Souda, from where one can see Akrotiri across the bay (to the north) and the islet of Karga (to the northwest). The location is surrounded by steep slopes on the east and west. At the western end of the village, on the road to Kalyves, one can see the ruins of an early Christian basilica of the 6th century, which has impressive mosaic floors. Right next to the church, on the hill of Finikia, one can find the ruins of an ancient Greco-Roman city, whose traces have also been found on the islet of Karga right opposite.
The development of tourism did not take long to reach Almyrida, which developed into a popular resort within a few years. A significant factor that led to this development was its beautiful beach, which is awarded every year with the “blue flag”, a form of certification of its seawater purity and of the existence of the necessary infrastructure for the safety of bathers. As a result, several hotels and restaurants have been built to accommodate the needs of visitors, who can also try several water sports in the area, such as canoeing, sailing or diving.
Plus

La carte peut ne pas indiquer l'emplacement exact