Premium New development

Terrain à vendre à Agios Nikolaos

Agios Nikolaos, Lasithi, Crète, Grèce

€145 000  [£127 439]

Terrain à vendre à Agios Nikolaos

Agios Nikolaos, Lasithi, Crète, Grèce

€145 000  [£127 439]

Détails du bien immobilier


  • Chambres: 0
  • Salles de bain: 0

Description complète


This plot of 2246 m2 is nicely positioned on the slope of a hill in the area of Mardati, less than a 5 minute drive to the modern tourist town of Agios Nikolaos.
From its elevated position it enjoys uninterrupted sea and mountain views.

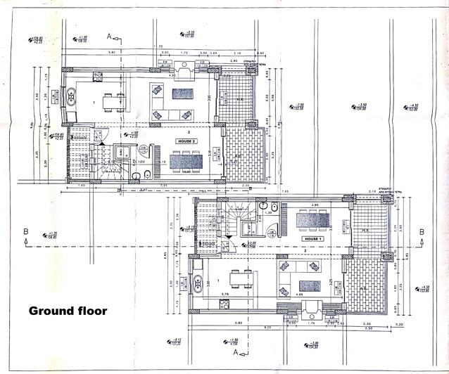
It is possible to build a total of 200 m2 on two floors, plus basement, plus attic on the plot.
This leaves you another 2046 m2 for garden, parking, pool and pergola spaces, etc.

The plot is bought with its building license (see building plans below) and the buyer can choose to use the existing license or to issue his own building license according to his wishes and needs.

It lies in a very quiet area at the edge of Mardati village boundaries.

There is easy road access to this land.

Water, electricity and phone lines with broadband internet are on land.

Bus service almost every hour to Agios Nikolaos and Kritsa.

Barely a 5-minute drive to the nearest organized sandy beach ("Almiros").

Agios Nikolaos is the capital of the county Lasithi and is located at the Mirabello Bay, north-east Crete, only 45 mins away from the international airport of Heraklion.

Geographically the town is well protected from strong winds allowing sea sports and swimming nearly all year round.

Although Agios Nikolaos has a population of less than 20,000 it has a several banks, supermarkets, shops of every kind, doctors, a modern hospital of high standard, public swimming pool and tennis courts, yacht marina, harbour, cinema, theatre, gyms, a 9-hole golf course, schools ranging from nurseries to 6-level high school and generally all the amenities you would expect to find in a modern European town.

The microclimate is one of the best in Greece and the moderate temperatures rarely exceed 30c in summer or fall below 15c in wintertime. This wonderful dry climate together with the natural beauty of the area has attracted most of the high class hotels of Greece to operate here.
Plus

La carte peut ne pas indiquer l'emplacement exact

Cette annonce immobilière (réf: 6D-PLMM11p) est fournie par Buy and Sell Estate Agency et ne constitue pas nécessairement une description précise d’un bien particulier. Bien que aplaceinthesun.com (APITS Ltd.) demande à tous les annonceurs de fournir des informations correctes, il ne vérifie pas les informations fournies et ne peut être tenu responsable pour quelque erreur que ce soit. Aplaceinthesun.com recommande de solliciter un avis juridique indépendant avant tout achat de bien immobilier à l'étranger.