Premium New development

Villa de 3 chambres à vendre à Chloraka

Chloraka, Chlorakas, Paphos, Chypre

€920 000  [£806 381]

Villa de 3 chambres à vendre à Chloraka

Chloraka, Chlorakas, Paphos, Chypre

€920 000  [£806 381]

Détails du bien immobilier


  • Chambres: 3
  • Salles de bain: 2

Description complète


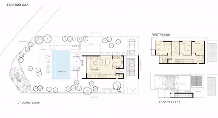
Three Bedroom Detached Villa For Sale in Chloraka, Paphos - Title Deeds (New Build Process)

A unique modern beachfront development of 3 bedroom villas for sale next to a 5-star beach hotel and close to a plethora of Paphos’ most popular attractions and amenities, such as the Paphos tourist area, harbour and the Kings Avenue Mall. The villas offer spacious interiors and private swimming pools in large plots. Its superior finishes, specifications and unique location provide elite buyers the opportunity to taste the luxury Cyprus Mediterranean lifestyle living.

- Master bedroom with ensuite and fitted wardrobes

- 2 Double bedrooms with fitted wardrobes

- Open plan living - lounge - dining - kitchen area

- Luxury fitted kitchen

- Granite worktops and high-end appliances

- Family bathroom

- Guest W/C

- Air conditioning

- Underfloor heating throughout

- Unfurnished

- Roof garden

- Semi-covered private parking

- Private infinity edge swimming pool

- Plot size - 505 - 523 m²

- Internal area - 166 - 176 m²

- Covered veranda - 42 - 62 m²

- Uncovered roof terrace - 72 m²

- Semi covered veranda - 16 - 17 m²

- Semi covered parking - 21 - 35 m²

- Al-fresco dining area with BBQ

- Roof top garden with seating area and panoramic sea views

- 1 Minute to the nearest beach

- 10 Minutes to Paphos Harbour with its wide selection of restaurants, bars and amenities

- 15 Minutes to the nearest golf course

- 20 Minutes to Paphos International Airport

- Suitable for Cyprus Permanent Residency - Fast Track

- Subject to VAT

- Energy Efficiency B

Chloraka

Chloraka is located 3 km north of Paphos Town and borders the tourist area known as the Tomb of the Kings. It is also home to Akritas Chloraka, a Cypriot Second Division football team. There are many hotels, restaurants and bars in this village which runs along the coast road from Paphos Town to Coral Bay. Chloraka’s location was put on the map in March 1998 when the cargo ship Demetrios II ran aground in heavy seas, the vessel is easily visible and has now become quite a focal point.
Plus

La carte peut ne pas indiquer l'emplacement exact

Cette annonce immobilière (réf: 10487721) est fournie par Cyprus Emerald et ne constitue pas nécessairement une description précise d’un bien particulier. Bien que aplaceinthesun.com (APITS Ltd.) demande à tous les annonceurs de fournir des informations correctes, il ne vérifie pas les informations fournies et ne peut être tenu responsable pour quelque erreur que ce soit. Aplaceinthesun.com recommande de solliciter un avis juridique indépendant avant tout achat de bien immobilier à l'étranger.