Premium New development

Bungalow de 3 chambres à vendre à Los Montesinos

Los Montesinos, Alicante, Région de Valence, Espagne

€299 900  [£261 830]

Bungalow de 3 chambres à vendre à Los Montesinos

Los Montesinos, Alicante, Région de Valence, Espagne

€299 900  [£261 830]

Détails du bien immobilier


  • Chambres: 3
  • Salles de bain: 2

Description complète


A lovely development of two or three-bedroom Bungalows and one level terrace properties located only a 15-minutes drive from the beautiful beaches of the Orihuela Costa which you can enjoy year-round thanks to the wonderful Mediterranean climate.

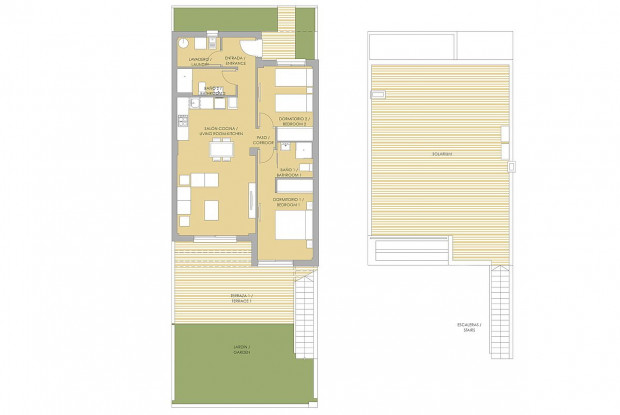
The Bungalows comprise of two/three bedrooms, family bathroom, fully-fitted modern kitchen with breakfast bar and spacious open-plan living/dining area leading to either a private garden or rooftop solarium.

The single-storey terraced chalets with 2 bedrooms and 2 bathrooms are an open plan design with the master bedroom having en-suite, also great outdoor space with large garden, terrace and solarium on the top.

The development offers a communal swimming pool, Jacuzzi with different jets, showers, children's playground and off-road parking.

The village of Los Montesinos is a typical Spanish village which boasts all amenities as well as a municipal pool and traditional Spanish fiestas all year round. Los Montesinos is situated just 15 minutes from the sandy beaches of Guardamar, a short drive from various golf courses, and just 32km (40 minutes) from Alicante airport.

Maisons de 2 ou 3 chambres à Los Montesinos, Costa Blanca Sud

Un beau quartier de maison de 2 ou 3 chambres avec un jardin ou un solarium sur le toit.

Le complexe offre aussi une piscine communautaire, jacuzzi, douches, aire de jeux pour enfants et une zone de stationnement.

L'emplacement se trouve à proximité d'un parcours de golf et à seulement 15 minutes en voiture des belles plages d'Orihuela Costa dont vous pouvez profiter à peu près toute l'année grâce au merveilleux climat méditerranéen.

Plus

La carte peut ne pas indiquer l'emplacement exact

Cette annonce immobilière (réf: 873D) est fournie par MASA et ne constitue pas nécessairement une description précise d’un bien particulier. Bien que aplaceinthesun.com (APITS Ltd.) demande à tous les annonceurs de fournir des informations correctes, il ne vérifie pas les informations fournies et ne peut être tenu responsable pour quelque erreur que ce soit. Aplaceinthesun.com recommande de solliciter un avis juridique indépendant avant tout achat de bien immobilier à l'étranger.