Premium New development

Maison de 5 chambres à vendre à Saint John

Saint John, Grenade

€1 441 632  [$1 695 000]

Maison de 5 chambres à vendre à Saint John

Saint John, Grenade

€1 441 632  [$1 695 000]

Détails du bien immobilier


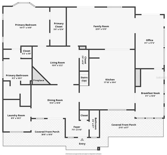
  • Chambres: 5
  • Salles de bain: 0
  • Surface du terrain: 1719 m2
  • Surface habitable: 335 m2

Description complète


Nestled behind gates in the heart of Winter park, this enchanting 1930's residence blends historic charm with many recent upgrades. The beautifully renovated kitchen anchors the home, while the downstairs primary suite offers privacy and comfort with an elegant spa inspired bath. The detached one bedroom guest house is perfect for houseguests, a home office or multi-generational living. The main house has a flexible floor plan that includes four bedrooms and four and one half baths, a sunroom ideal for home office, formal dining room, oversized family room and charming sitting area with fireplace. The kitchen is a chef's delight with six burner gas range, large center island, plentiful l space for gatherings and a separate breakfast room. Other notable features include gleaming wood floors, double pane windows offering abundant natural light, adorable laundry room/mud room. French doors from many rooms open to a classic front porch that is a perfect place for relaxing and enjoying picturesque grounds with towering oaks. Step outside to a private heated pool. Detached garage includes Tesla charging station. This gated compound situated on .42 acres is one block from Lake Osceola and a easy walk to Park Avenue.
Plus

La carte peut ne pas indiquer l'emplacement exact

Cette annonce immobilière (réf: O6379927) est fournie par Alistair Brown International Real Estate et ne constitue pas nécessairement une description précise d’un bien particulier. Bien que aplaceinthesun.com (APITS Ltd.) demande à tous les annonceurs de fournir des informations correctes, il ne vérifie pas les informations fournies et ne peut être tenu responsable pour quelque erreur que ce soit. Aplaceinthesun.com recommande de solliciter un avis juridique indépendant avant tout achat de bien immobilier à l'étranger.